大開口を介して、庭とつながる、家族とつながる。多様な暮らし方に対応可能な平屋建て「陽の家」発売
株式会社良品計画(本社:東京都豊島区東池袋4-26-3 代表取締役:松﨑 曉)の子会社である株式会社MUJI HOUSEは、2019年9月13日(金)、5年ぶりの新商品となる平屋建て商品「陽の家」の発売を開始いたします。無印良品の家としては初の平屋専用商品となり、耐震性や断熱性など住宅に求められる本質的な性能を追求しつつ、庭とつながる全開口サッシや、木質感を大切にしたインテリア・エクステリアデザインを採用。無印良品らしいシンプルで幅広い年代の暮らし方に対応できる商品としました。

「陽の家」商品開発経緯
少子高齢化や、働き方改革など、私たちの暮らしに大きな変化をもたらす時代の変革の中で、平屋に対するニーズは年々高まってきています。当社モデルハウスへ来場されたお客様に実施しているアンケートでも平屋をラインナップしてほしいという声は多くあり、幅広い世代の方々のために、そして住む場所の選択肢が広く、多様な「暮らしのかたち」に対応できる家として、平屋建て商品「陽の家」は開発されました。
住宅が密集する都市部では、2階、3階とフロアを重ねて居住スペースを拡張させていきます。そのため、いままでの無印良品の家では、吹抜けをつくり、間仕切り壁をできるだけ取り払いながら、広さや奥行きを感じる立体的なつながりをつくってきました。「陽の家」ではこれまでの無印良品の家のコンセプトを踏襲しつつ、平屋だからこそ得られる庭とのつながりを重視し、フラットで快適な居住スペースを持つ商品としています。
「陽の家」のコンセプト
■ 性能の高い「箱」であること
無印良品の家は、耐震性および耐久性の高いSE構法の採用により、資産価値の高い長寿命な住宅を目指しているだけでなく、充填断熱と外張り断熱を組み合わせた「ダブル断熱」を採用し10年先を見据えた高い断熱性能を実現。平成25年度省エネ基準値を大きく上回る、UA値「0.42」という性能値となっています(いすみモデル棟での計算値)。また、シンプルな箱状の外観とし、間仕切りを少なくした一室空間にすることで、住み手のライフスタイルや家族構成の変化に合わせ、空間構成を柔軟に変えることができます。
■ 庭と仲良くするくらし
「陽の家」は平屋だからこそ、庭とのつながりを楽しめるように窓をすべて壁に引き込むことができる全開口サッシを採用しています。ウッドデッキとの段差をなくし室内と屋外を緩やかにつなぐことで、広々とした空間が生まれます。天気のよい週末には、テーブルを庭に出して木陰の下で朝食の時間をゆっくり過ごしてみるなど、室内で行われる営みを庭に出すという新しい暮らし方を提案しています。
「陽の家」の主な特徴
■ 外壁は国産杉材を使用した木製サイディング

外壁には国産杉を使用した木製サイディングを標準設定。木材ならではの温かみが感じられ、その経年変化を楽しむことができます。また、オプションでつなぎ目のないオリジナル塗り壁調仕上げもお選びいただけます。
■ 室内と庭を連続的につなぐ全開口サッシとウッドデッキ

「陽の家」は、窓が壁の中に全て納まる全開口サッシを採用。全開時には開口部分に余計なものが見えず、これまでにない開放感を得ることができます。ウッドデッキは室内との段差がなく、室内と屋外をフラットにつなぎ、広々とした空間を生み出します。
■ リビングは勾配天井の採用で心地よい開放感

リビングは建物のかたちそのままが現れる勾配天井としました。登り梁を用いて、室内に余計な構造材を見せず、平屋でありながら開放的な空間をつくっています。
■ 無印良品の収納アイテムを使ってカスタマイズできるキッチン

キッチンを調理だけの場所でなく、家族が集まる場所として考え、オリジナルカウンター付フレームキッチンを設定。キッチンカウンターの下をオープンにすることで、無印良品の収納アイテムを納めることができ、使い勝手に合わせてカスタマイズすることができるようにしました。
■ MUJI HOTELで採用のオリジナル洗面ボウルを設定

MUJI HOTELで採用された無印良品オリジナルの洗面器を採用しています。表面は落ち着きのあるマット仕上げ、エッジを薄くしながらも、柔らかい曲線が美しい無印良品らしいシンプルなデザインです。
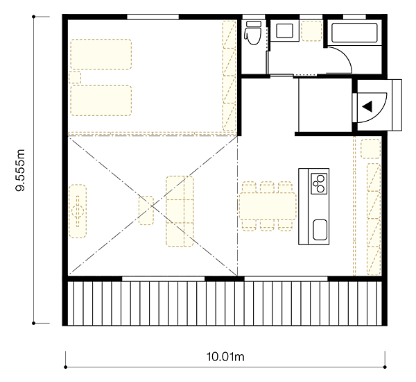
「陽の家」のプラン・価格例
- 商品名
- 陽の家 間口5.5間(10.01m)×奥行5.25間(9.555m)タイプ
- 構造・規模
- 木造軸組工法(SE構法)
- 建築面積
- 95.64m2(28.93坪)
- 床面積
- 80.32m2(24.29坪)
- 価格
- 標準仕様本体工事価格 1,598万円(消費税別)

陽の家モデル棟の見学について
陽の家を実際にご覧いただけるモデル棟を9/21(土)より毎週土日祝日限定で予約制にて公開いたします。
(詳しくは当社ホームページをご覧ください。)
所在地:千葉県いすみ市
無印良品の家 共通コンセプト・性能について
■ 永く使える、変えられる
無印良品の家は「永く使える、変えられる」をコンセプトに、耐震性および耐久性の高いSE構法の採用により「永く使える」ことを可能にし、将来の家族構成やライフスタイルの変化に合わせて間取りを柔軟に変更できる、「変えられる」家づくりを実現しています。
■ 全棟構造計算を実施し、より信頼性の高い耐震性能
無印良品の家ではすべての建物を「耐震等級3」の耐震性を確保しており、採用しているSE構法は、強度が明確な「構造用集成材」の柱と梁を「SE金物」で接合し、構造の耐久性を数値で証明する「構造計算」を可能にしています。無印良品の家では建設するすべての建物を、一棟ずつ個別に構造計算を実施しています。
■ これからの住宅に求められる高い断熱性能
外壁の断熱には外張り断熱と充填断熱を併せたダブル断熱を標準仕様としており、断熱性能は平成25年度省エネ基準値(UA値:0.87)に対して、UA値「0.42」という性能値を実現しています。(陽の家いすみモデル棟での数値)
「無印良品の家」商品構成
2004年に発売した「木の家」(2015年度グッドデザイン・ロングライフデザイン賞受賞)に続き、2007年4月には「窓の家」(2008年度グッドデザイン金賞受賞)を発売しました。2014年4月には都市型3階建て住宅「縦の家」(2014年度グッドデザイン賞受賞)を発売し、現在は3商品の展開となっています。



「無印良品の家」営業拠点(全30拠点)
□ 東北エリア
青森店(木の家、窓の家)、仙台北店(木の家)
□ 関東甲信越エリア
新潟店(窓の家)、高崎店(木の家)、熊谷店(木の家)、つくば店(窓の家)、松戸店(木の家)、MUJI新宿 家センター(木の家)、港北ニュータウン店(木の家)、湘南店(窓の家)
□ 東海エリア
浜松店(木の家)、名古屋店(木の家、窓の家)、岡崎店(木の家、窓の家)
□ 関西エリア
大津店(窓の家)、京都南店(木の家)、奈良店(窓の家)、グランフロント大阪 家センター(木の家)、大阪南店(木の家)、和歌山店(木の家)、宝塚店(木の家、窓の家)、姫路店(木の家)
□ 中国エリア
倉敷店(木の家)、広島西店(木の家)、山口店(木の家)
□ 中国エリア
香川店(木の家)
□ 九州エリア
MUJIキャナルシティ博多 家センター(木の家)、中津店(窓の家)、大分店(木の家)、熊本店(窓の家)、鹿児島店(木の家)
今後のオープン予定
「無印良品の家 宇都宮店(木の家)」栃木県宇都宮市、2019年10月11日(金)オープン
「無印良品の家 米子店(木の家)」鳥取県米子市、2019年10月13日(日)オープン
株式会社MUJI HOUSE 会社概要
- 社名
- 株式会社 MUJI HOUSE 代表取締役社長 松﨑 曉
- 所在地
- 〒170-8424 東京都豊島区東池袋4-26-3
- 電話
- 03-3989-7731
- 設立
- 2000年5月31日
- 資本金
- 1億4,900万円(2019年9月1日現在)
- 事業内容
- 無印良品の家を中心とした住空間の直営及びネットワーク事業の運営/商品企画/開発/卸しおよび販売
無印良品の家 公式ホームページ https://www.muji.net/ie/
無印良品の家 公式Facebook https://www.facebook.com/mujiie.jp/
無印良品の家 公式instagram https://www.instagram.com/mujihouse/